--中文版--英文版--江苏通圆回转支承
 
 
单排球式回转支承01系列-内齿式
单排球式回转支承01系列-外齿式
单排球式回转支承01系列-无齿式

01系列JB/T 2300-1999

⑴--回转支承结构型式代号
01:单排球式
⑵--传动型式代号
     0:无齿式
     1:小模数外齿式
     2:大模数夕L齿式
    
3:小模数内齿式
     4:大模数内齿式
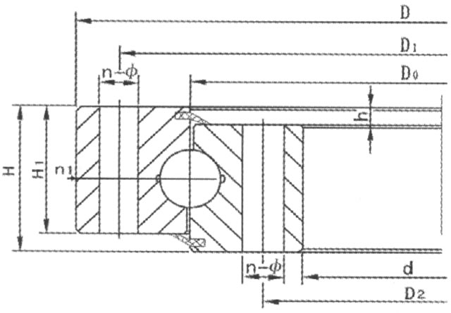
⑶--滚动体直径mm
⑷--滚道中心直径mm
⑸--安装配合型式代号
     0:标准型无止口
    
1:标准型有止口
     2:特殊型

⑹--安装孔型式代号
     0:内、外圈安装孔均为通孔
     1:内、外圈安装孔均为螺孔
     2:外圈安装孔为通孔,内圈为螺孔
     3:外圈安装孔为螺孔,内圈为通孔
型号标记示例:
   单排球式,大模数内齿,滚动体直径40mm,滚道中心直径1000mm,标准型有止口,内外圈安装孔均为通孔连接,产品型号标记如下:
   回转支承014·40·1000·10
       JB/T 2300-1999
单排球式回转支承(01系列)
单排球式回转支承(hs系列)
单排球式回转支承(q系列)
三排柱式回转支承(13系列)
三排柱式回转支承(s系列)
涡轮蜗杆系列回转支承
如果需要结构图与承载曲线图
请与我公司研发设计部联系!
 
|友情连接|通圆支承·版权所有|备案号:苏ICP备10011097号